苏州写字楼图鉴
来源:速办网
2022-07-25

上周的5个工作日,我和同事大概有一半时间用来实地考察了苏州和昆山的写字楼项目。苏州主要去了苏州工业园区,昆山则主要是在昆山南站附近,以及昆山城西和城东。
一方面是因为我们有个老客户想要在苏州工业园区或昆山城区买个500~800平的写字楼(如有品质较好的该片区写字楼在售面积的朋友,也欢迎提供资讯,重谢)。
另一方面则是出于职业的关系,我们对于同在长三角高铁站沿线的昆山和苏州的写字楼市场十分感兴趣,一直想找个机会去了解了解市场。
于是乎我们前几天顶着40度的高温以及不厌其烦的核酸检测,大致把苏州园区和昆山城区的写字楼实地盘点了一遍。

【苏州园区写字楼概况】
这篇主要梳理的是苏州,具体来说是苏州工业园区湖东CBD和湖西CBD的主要写字楼。
苏州工业园区于1994年5月启动。行政区划面积278平方公里,其中中新合作区80平方公里。对比下上海虹桥商务区总规划面积151.4平方公里,而初始规划面积约86平方公里之后,就会知道苏州工业园区的规划面积之大,发展目标之豪横。2021年,苏州工业园区实现生产总值约3330亿元(不含苏相),妥妥的苏州产业标杆。
苏州工业园区的写字楼主要集中在金鸡湖的东岸和西岸,绝大多数楼宇都是开发商自持只租不售的。朝向以能看到金鸡湖湖景为佳,在租金和售价上都高于同楼层其他朝向单元。这有点像上海的写字楼,无论地处浦东还是浦西,都喜以江景为卖点。
湖西和湖东CBD类似于上海的浦西和浦东,湖西先规划建设,然后发展的重心转移至了湖东(工业园区的管委会也已搬至湖东)。湖东的写字楼规划有点小陆家嘴的意思,高楼林立,商业配套十分齐全。
我们从最高楼九龙仓国际金融中心开始,一路看了晋合广场,还在建的环贸中心,协鑫中心,太平金融,丰隆中心,圆融金融中心,圆融时代广场等等,也有几个长的很像写字楼的高楼走近一看却是高端公寓或星级酒店,香格里拉,凯悦酒店,金匙望湖等等。
相比上海来说,苏州的地铁站间距很短,1号线时代广场站往东500多米就是星湖街的地铁站入口,再往东1200米就是南施街的地铁站入口。而从南施街地铁口到下一站钟南街地铁口大约2000米的马路两侧,遍布着各个银行的总部大厦及苏州工业园区的各部门行政大楼。
目前湖西也好,湖东也好,绝大多数的写字楼都是只租不售的,少数楼龄较老的写字楼前几年竣工后已经散售,所以二手写字楼市场不时会有面积出售。出租行情多在3~5元/㎡·天(按照苏州惯例算法则是90~150元/平·月),物业费普遍比上海的写字楼便宜,多在12~25元/平·月。

——国际金融中心外立面
【湖东CBD之国际金融中心】
湖东CBD的地标建筑是正对着金鸡湖的九龙仓国际金融中心(IFS)),当地人习惯简称为国金中心。到了苏州,无论你走在哪一个角落,都能看到一栋高耸入云的建筑,不用怀疑,你已经看到了这座目前的江苏省第一高楼国金中心。
物业地址:苏州大道/思安路
地铁交通:苏州1/8号线时代广场站
总建筑面:约393208㎡
标 准 层:约3300㎡
单套面积:231~475㎡
出售报价:2~4.1万/㎡
T1幢主楼:总高450米(128层)
其中:
6-57层:5A级标准写字楼
(6-16层自持招租)
(18-32层的少数楼层在售)
(35-57层被一家上市公司整体收购)
59-100层:70年产权精装公寓住宅
103-118层:五星级酒店
128层:观光平台,可俯瞰苏州城全貌;
净 层 高:4.4米(吊顶后约3米)
开盘时间:2018年年底
物 业 费:18+9.9元/㎡·月
空调系统:中央空调
车 位 费:700~900元/月(共6000个车位)
得 房 率:约65%
物业公司:九龙仓自管
T2幢:酒店式公寓(已售)
T3幢:12层办公整体出售

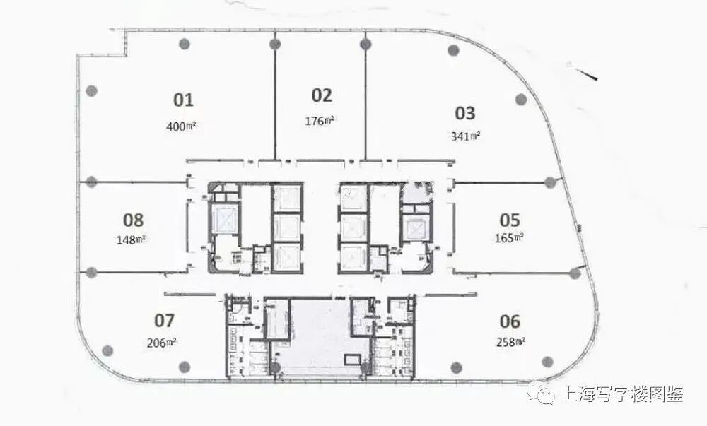
——国际金融中心平面图

——国际金融中心大堂

——国际金融中心电梯间

【湖西CBD之苏州中心】
湖西CBD的核心地标建筑无疑是苏州中心。
苏州中心建于2017年,毗邻金鸡湖畔,集商业,办公,服务式公寓,酒店为一体,开发总量约为113万㎡,苏州地铁1号线和3号线在这里交汇,其中写字楼共有4幢,只租不售。
物业地址:星港街/苏绣路
地铁交通:苏州1/3号线苏州之门站
总建筑面:约113万㎡(地上69万㎡)
净 层 高:4.4米(吊顶后约3米)
竣工时间:2017年
物 业 费:25元/㎡·月
空调系统:中央空调
车 位 费:700~900元/月(共6000个车位)
得 房 率:70%
出租单价:90~140元/㎡·月
出租面积:
A/B幢单套300~460㎡,整层约2200㎡;
C/D幢单套146~400㎡,整层约1700㎡;
总 层 高:A幢35层;B幢30层
C幢23层;D幢23层
物业公司:A/B幢第一太平戴维斯
C/D幢凯德物业




【湖东湖西CBD写字楼实拍】






